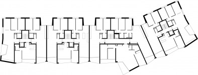
Concours d'architecture

Vieusseux
2013
Périmètre Vieusseux - Villars - Franchises

ETUDE
Anderegg-Rinaldi Architectes et associés SA

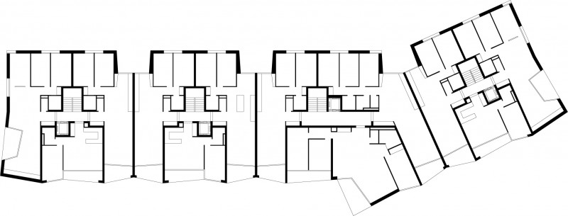
Concours d'architecture
Concours d'architecture
Concours d'architecture
Concours d'architecture