Concours d'architecture
Val d'Arve
2014
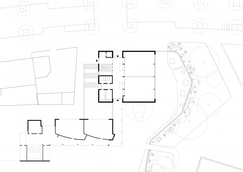
Extension de l'école du Val d'Arve
ETUDE
Anderegg-Rinaldi Architectes et Associés SA
2ème prix




