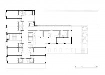
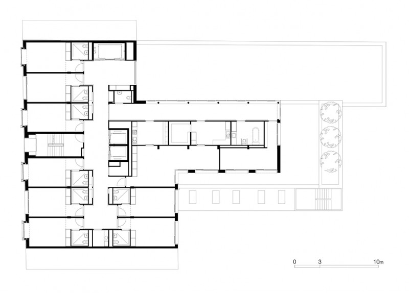
EMS Notre-Dame de la Compassion
Genève
2011
Construction d'un EMS
Conception: 2005
Réalisation: 2011
MAÎTRE DE L'OUVRAGE
Association Notre-Dame de la Compassion
MANDATAIRES
XXL Green Project SA
ETUDE ET ARCHITECTURE
Anderegg-Rinaldi Architectes
et
Atelier d'Architecture Gabriel Duboule
INGÉNIEURS CIVILS
Pillet SA
G. Schaeffer & S. Bartolini SA
INGÉNIEURS CVSE ET SECURITÉ
Rigot + Rieben Engineering SA




