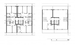
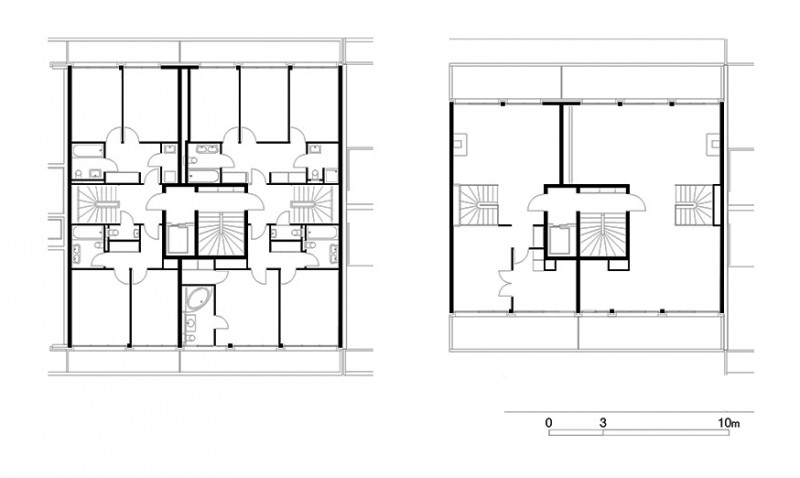
Les Hauts de Malagnou
Champel (GE)
1997
Immeuble de logements PPE
Conception: 1995
Réalisation: 1997
MAÎTRE D'OUVRAGE
Barbier Mueller & Cie
ARCHITECTES
Anderegg-Rinaldi Architectes
INGÉNIEURS CIVILS
Pillet SA
GÉOMÈTRES
Morand & Bovier
GÉOTECHNIQUE
P. et C. Dériaz
ÉLECTRICITÉ
Salvisberg SA
SANITAIRE
Schneider SA
CHAUFFAGE|VENTILATION
Aria Control SA



