Voltaire 20
Genève
2015
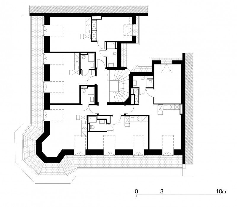
Aménagement de combles
Réalisation: 2015
ETUDE
Anderegg-Rinaldi Architectes et associés SA
DIRECTION DES TRAVAUX
SPG Prorenova














