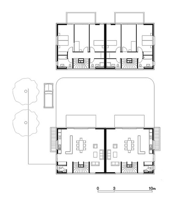
La Butte
Plan-les-Ouates (GE)
2010
Construction de six villas mitoyennes
Conception: 2006
Réalisation: 2010
ARCHITECTES
Anderegg-Rinaldi Architectes




