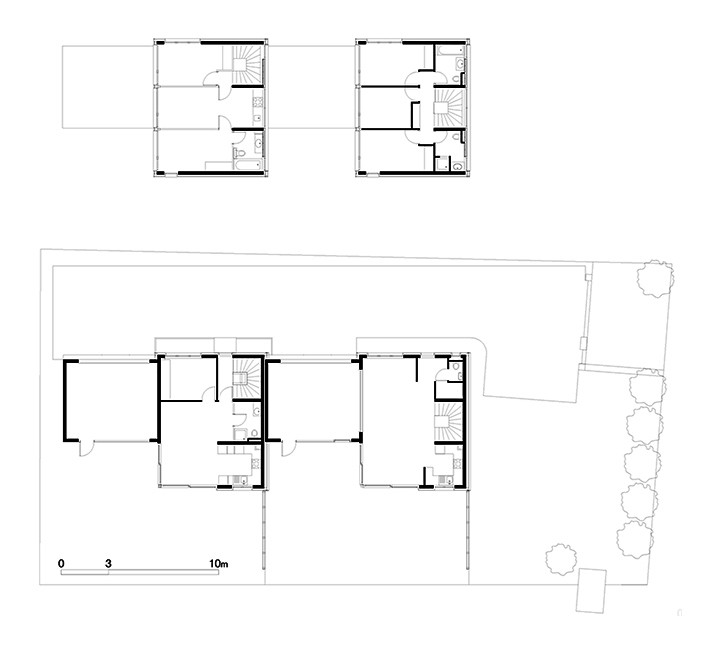
Les contiguës de Corsier
Corsier
2005
Construction de deux villas contiguës
Conception: 2003
Réalisation: 2005
ARCHITECTES
Anderegg-Rinaldi Architectes
INGÉNIEURS CIVILS
G. Schaeffer & S. Bartloni SA



