Les plages de Dardagny
Dardagny
2016
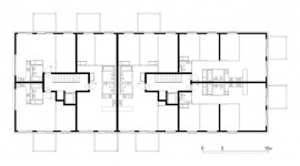
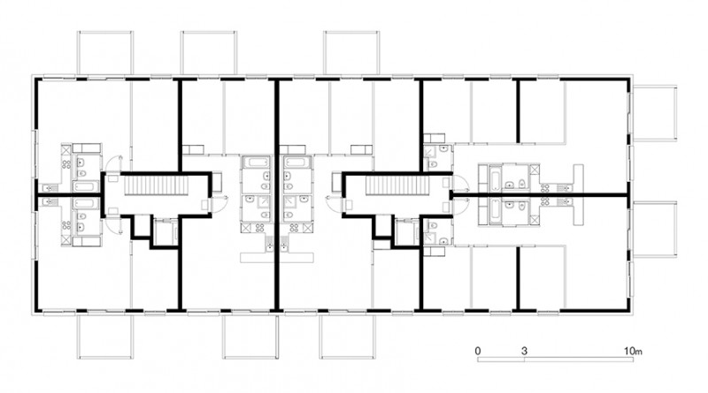
Immeubles logements LUP, HM et PPE
Réalisation: en cours
ETUDE
Anderegg-Rinaldi Architectes et associés SA
Atelier d'Architecture Gabriel Duboule
DIRECTION DES TRAVAUX
Dubouchet, Contat, Aeby Architectes Associés SA
INGENIEURS CIVILS
Pillet SA














