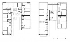
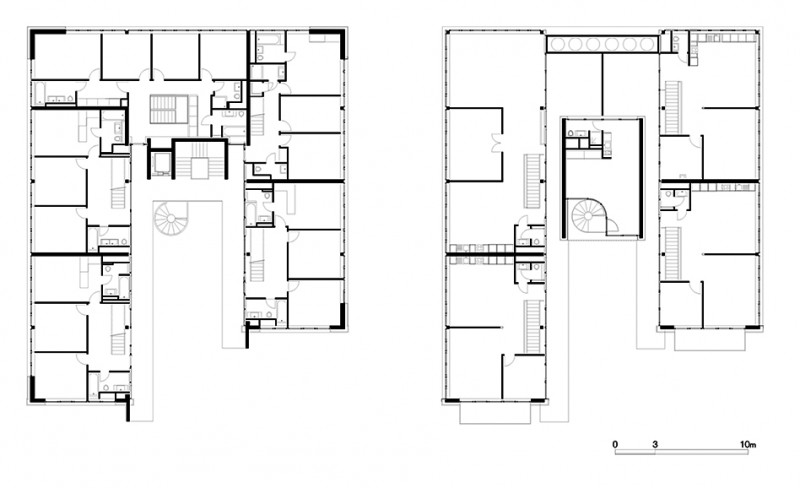
Le Patio de Frontenex
Eaux-Vives
2010
Logements et bureaux
Conception: 2005
Réalisation: 2010
ÉTUDE
Anderegg-Rinaldi Architectes
ENTREPRISE GÉNÉRALE
Losinger Construction AG









