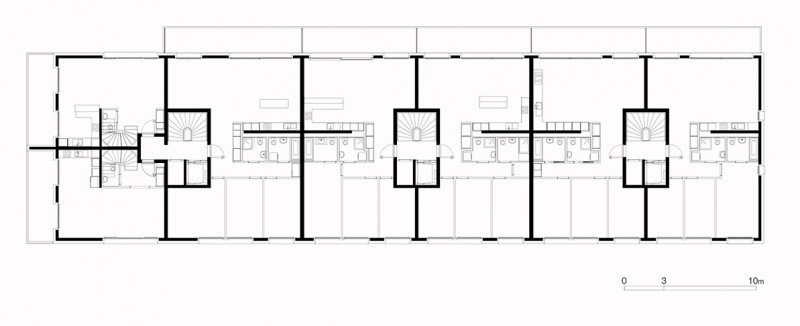
Les jardins de Lancy
Petit-Lancy
2011
Immeuble de logements PPE
Conception: 1999 - 2009
Réalisation: 2010 - 2011
ETUDE
Anderegg-Rinaldi Architectes et associés SA
Atelier d'Architecture Gabriel Duboule
DIRECTION DES TRAVAUX
Pillet SA
INGENIEURS CIVILS
Pillet SA









