Tambourine
Carouge (GE)
2006
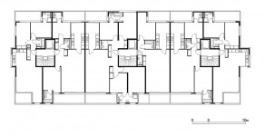
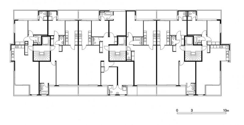
Immeuble de logements HM
Conception: 2004
Réalisation: 2006
MAÎTRE DE L'OUVRAGE
Société Coopérative d'Habitation Genève
PROJET ET AUTORISATION
Favre & Guth SA
MANDATAIRES
XXL Green Project SA
ARCHITECTES
Anderegg-Rinaldi Architectes
INGÉNIEURS CIVILS
G. Schaeffer & S. Bartolini SA
ARCHITECTE-PAYSAGISTE
Gilbert Henchoz Architectes Paysagistes Conseils SA
CHAUFFAGE-VENTILATION
Hirt Dominique
SANITAIRE
Schumacher Ingénierie SA
ÉLECTRICITÉ
MAB-Ingénierie SA




