Résidence de l'Orangerie
Genève
2007
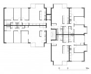
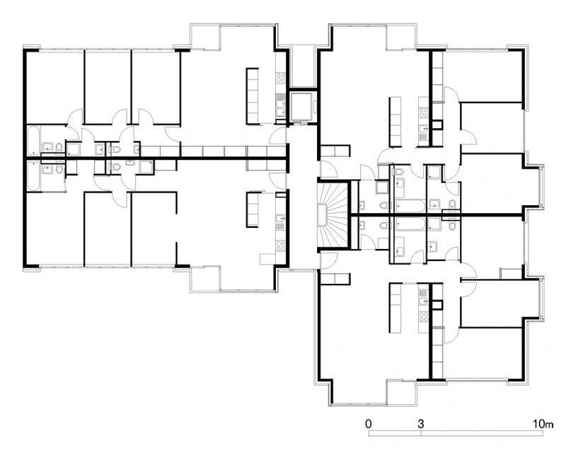
Immeuble de logements PPE
Conception: 2003
Réalisation: 2007
MAÎTRE DE L'OUVRAGE
Immobilière du léman, Thierry Barbier-Mueller, Paul et Patrick Pillet, Pascal Anderegg et Daniel Rinaldi
ARCHITECTES
Anderegg-Rinaldi Architectes
INGÉNIEURS CIVILS
Pillet SA
PILOTE
Société Privée de Gérance







