Le Pommier
Grand-Saconnex
2005
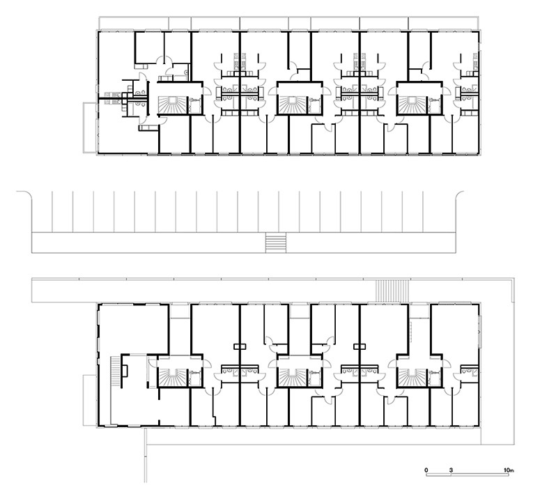
Immeubles de logements HBM
Conception: 2001
Réalisation: 2005
MAÎTRE DE L'OUVRAGE
Fondation HBM Jean Dutoit
MANDATAIRES
XXL Green Project SA
ARCHITECTES
Anderegg-Rinaldi Architectes
et
Atelier d'Architecture Gabriel Duboule
INGÉNIEURS CIVLS
Pillet SA
et
G. Schaeffer & S. Bartolini SA
INGÉNIEURS CVSE
Rigot + Rieben Engineering SA
CHAUFFAGE
Monnier SA
VENTILATION
Klima SA
SANITAIRES
Atel Bornet SA
ÉLECTRICITÉ
Savoy R. SA




