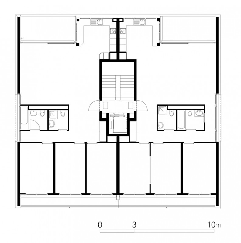
Ecu
Vernier (GE)
2009
Immeuble de logements PPE
Conception: 2006
Réalisation: 2009
ARCHITECTES
Anderegg-Rinaldi Architectes
et
Atelier d'Architecture Gabriel Duboule
INGÉNIEURS CIVILS
Pillet SA



