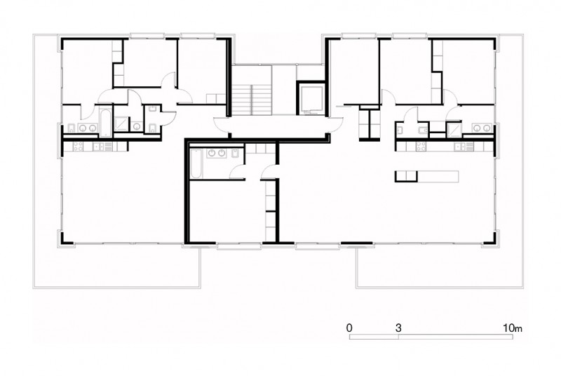
Résidence Saint-Martin
Vevey (VD)
2009
Immeuble de logements PPE
Conception: 2007
Réalisation: 2009
PILOTE
Société Privée de Gérance
PROJET, AUTORISATION ET MANDATAIRES
Anderegg-Rinaldi Architectes
DIRECTION DES TRAVAUX
Karl Steiner SA



